市役所庁舎のご案内について
恵庭市役所の各部各課のご案内をするページです。 事前にこちらを見てからご来庁頂きますと、スムーズにご案内できます。 具体的な配置につきましては、添付の配置図をご覧ください。 また、何か不明点がございましたら、下記連絡先までご連絡ください。
市役所敷地内全体図
本庁舎1階
- 税務課
- 債権管理課
- 市民課
- 国保医療課
- 介護福祉課
- 会計課
- えにわっこ応援センター(本庁舎1階隣の市民会館
- 教育総務課
- 教育支援課
- 教育施設課
- 社会教育課
本庁舎2階
- 総務課
- 情報政策課
- 秘書課
- 基地・防災課
- 職員課
- 財政課
- 管財・契約課
- 生活環境課
- 廃棄物管理課
- 脱炭素推進課
- 福祉課
- 障がい福祉課
- 情報公開コーナー
- 子ども政策課
- 幼児・保育課
本庁舎3階
- 農政課
- 商工労働課
- 花と緑・観光課
- 農業委員会
- 議会事務局
第二庁舎1階
- 農政課
- 商工労働課
- 花と緑・観光課
- 農業委員会
- 議会事務局
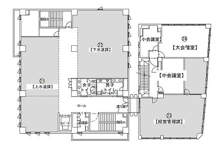
第二庁舎2階
- 経営管理課
- 上水道課
- 下水道課
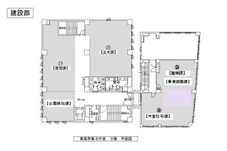
第二庁舎3階
- 管理課
- 公園緑地課
- 土木課
- 建築課
- 事業調整課
- 市営住宅課

